Skip to main content

Green Building Resource Center - Studio Project

Our new design plan for the Green Building Resource Center (GBRC) focuses on advancing sustainability education through modern technology. By integrating interactive digital tools, AR/VR experiences, and paper‑free learning platforms, the space delivers engaging, up‑to‑date information while reducing environmental impact.

The concept is built around three goals:

Inform through interactive displays and immersive demonstrations of sustainable materials and technologies.

Inspire by highlighting real‑world examples of green innovation and showcasing the possibilities of sustainable design.

Empower with hands‑on workshops and digital toolkits that give visitors practical skills they can apply in their own projects.

The design preserves the building’s architectural character like the exposed brick and concrete columns, while layering in sustainable materials such as reclaimed wood, recycled metal, bamboo, and organic textiles. Energy‑efficient lighting and biophilic elements create a warm, human‑centered environment that supports exploration and learning. Together, these strategies position the GBRC as a model for how technology and sustainability can work in harmony to shape a greener built environment. This design plan meets the requirements to qualify for O+M LEED Certification.

Entrance/Lobby

Entrance/Lobby

Reception

Reception

Lounge & Training Room/Workshop

Lounge & Training Room/Workshop

VR Tour Terminal

VR Tour Terminal

Showroom

Showroom & Training/Workshop

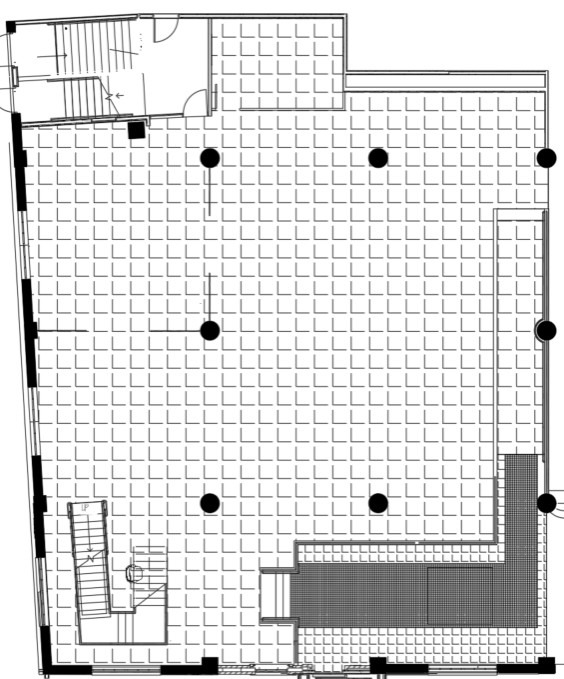
Floor Plan

Floor Plan

Ceiling Design

Ceiling Design

Floor Design

Floor Design